保溫放料閥產品概述
保溫放料閥是在其閥體外表面焊接一層金屬夾套,使它們之間構成便于加熱流體流動以達到良好保溫功效的通道,確保閥門內腔正常恒溫,提高易凝固、結晶和高粘度等介質的流動性,保障放料閥能夠正常啟閉。該閥的結構特點是保溫夾套焊裝在殼體上,并在它的不同側設置有一到兩個保溫加熱流體入口和出口,且接口連接形式可根據工況要求設計成法蘭或管螺紋,通過它可自由地流通蒸汽、熱油或其它熱的保溫介質,使沉淀于反應釜、儲罐和其他容器底部的粘稠介質得于放料、排料、取樣及流通。本產品主要安裝在化工、石油化工、食品、制藥等裝置的罐底,用于排放常溫下會凝固、結晶的高粘度物料,做輸送啟閉放料用。
保溫放料閥部件材料
序號 | 部件名稱 | 材料名稱 | ||||
1 | 閥 體 | WCB | CF8 | CF3 | CF8M | CF3M |
2 | 閥 蓋 | WCB | CF8 | CF3 | CF8M | CF3M |
3 | 閥 座 | WCB | CF8 | CF3 | CF8M | CF3M |
4 | 閥 桿 | WCB | CF8 | CF3 | CF8M | CF3M |
5 | 支 架 | WCB | WCB | WCB | WCB | WCB |
6 | 填 料 | GRAPHITE、RPTFE、PTFE、TEFLON、PPL | ||||
7 | 閥 瓣 | WCB | CF8 | CF3 | CF8M | CF3M |
8 | 墊 片 | GRAPHITE | PTFE | PTFE | PTFE | PTFE |
9 | 保溫夾套 | 20# | 06Cr19Ni10 | 06Cr19Ni10 | 06Cr19Ni10 | 06Cr19Ni10 |
10 | 螺 柱 | 35CrMoA | 06Cr19Ni10 | 06Cr19Ni10 | 06Cr17Ni12Mo2 | 06Cr17Ni12Mo2 |
11 | 螺 母 | 30CrMo | 06Cr19Ni10 | 06Cr19Ni10 | 06Cr17Ni12Mo2 | 06Cr17Ni12Mo2 |
保溫放料閥技術規范
公稱壓力PN(MPa) | 0.6 | 1.0 | 1.6 | 2.5 | 2.0 |
殼體強度試驗壓力(MPa) | 0.9 | 1.5 | 2.4 | 3.75 | 3.0 |
高壓水密封試驗壓力(MPa) | 0.66 | 1.1 | 1.76 | 2.75 | 2.2 |
低壓氣密封試驗壓力(MPa) | 0.6 | 0.6 | 0.6 | 0.6 | 0.6 |
設計制造 | JB/T 11489-2013 放料用截止閥 | ||||
結構長度 | 按GB/T 12221、ASME B16.10的規定或按訂貨合同要求 | ||||
連接法蘭 | JB/T 79、GB/T 9113、HG/T 20592、HG/T 20615、SH/T 3406、ASME B16.5等 | ||||
檢驗試驗 | JB/T 13458-2018 保溫夾套閥門 | ||||
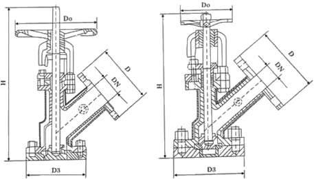
保溫放料閥外型尺寸
公稱壓力 PN(MPa) | 公稱通徑 DN(mm) | 上展式尺寸(mm) | 下展式尺寸(mm) | ||||
D | D3 | H | D | D3 | H | ||
1.6 | 25 | 115 | 115 | 270 | 115 | 135 | 225 |
32 | 135 | 135 | 285 | 135 | 145 | 300 | |
40 | 145 | 145 | 355 | 145 | 160 | 340 | |
50 | 160 | 160 | 370 | 160 | 180 | 345 | |
65 | 180 | 180 | 465 | 180 | 195 | 425 | |
80 | 195 | 195 | 480 | 195 | 215 | 445 | |
100 | 215 | 215 | 590 | 215 | 245 | 535 | |
125 | 245 | 245 | 730 | 245 | 280 | 585 | |
150 | 280 | 280 | 775 | 280 | 335 | 665 | |
200 | 335 | 335 | — | 335 | 405 | — | |
保溫放料閥結構圖

如果你需訂購我放料閥產品,咨詢時煩請提供型號數據,公稱通徑、公稱壓力、閥體材質、使用介質、介質溫度法蘭標準等,本產品有上展式、下展式和柱塞式三種,如有特殊要求,咨詢時請詳細說明。
網站首頁