?電動放料閥產品簡介
電動放料閥由閥體、閥瓣、閥桿、閥座、支架和直行程電動執行機構等部件組成,其可以電動遙控控制放料閥的開關,實現對罐內物料的自動排放,也可就地通過轉動電裝上的手輪手動驅動,帶行程開關信號燈和就地開度指示。該閥的常見結構形式分為上展式和下展式,它的運動件閥桿通過鎖緊螺母連接閥瓣,閥芯貼合閥座呈密封狀態,保障腔內介質不泄漏,閥桿接受電裝輸出軸上、下位移,使閥芯實施開或關動作,以實現自動排放物料的目的。本產品通常與反應釜配套使用,一般設計閥芯座兼備釜底法蘭的功能。
電動放料閥以220V交流單相可逆異步電動機(含齒輪減速)或其他類型電動機為執行器,智能控制器為其設置智能比例式伺服電路,接收控制系統或調節器的4~20mA DC或1~5V DC信號,經A/D轉換送到CPU進行運算處理,同時CPU與來自電裝的開度信號及上、下限位置進行比較后驅動電機轉動,通過齒輪減速后推動輸出軸作上、下位移,從而驅動閥桿帶動啟閉件上升或下降,以實現輸入信號對閥門開關的控制以及流量調節的作用。本產品電動執行機構分為調節型和開關型,這兩種都可以選擇防爆型或普通型。
電動放料閥部件材料
序號 | 部件名稱 | 材料名稱 | ||||
1 | 閥 體 | WCB | CF8 | CF3 | CF8M | CF3M |
2 | 支 架 | WCB | CF8 | CF3 | CF8M | CF3M |
3 | 閥 座 | WCB | CF8 | CF3 | CF8M | CF3M |
4 | 閥 瓣 | WCB | CF8 | CF3 | CF8M | CF3M |
5 | 填 料 | GRAPHITE、RPTFE、PTFE、TEFLON、PPL | ||||
6 | 閥 桿 | 2Cr13 | 06Cr19Ni10 | 022Cr19Ni10 | 06Cr17Ni12Mo2 | 022Cr17Ni12Mo2 |
7 | 墊 片 | GRAPHITE | PTFE | PTFE | PTFE | PTFE |
8 | 螺 柱 | 35CrMoA | 06Cr19Ni10 | 06Cr19Ni10 | 06Cr17Ni12Mo2 | 06Cr17Ni12Mo2 |
9 | 螺 母 | 30CrMo | 06Cr19Ni10 | 06Cr19Ni10 | 06Cr17Ni12Mo2 | 06Cr17Ni12Mo2 |
電動放料閥技術規范
公稱壓力PN(MPa) | 0.6 | 1.0 | 1.6 | 2.5 | 2.0 |
殼體強度試驗壓力(MPa) | 0.9 | 1.5 | 2.4 | 3.75 | 3.0 |
高壓水密封試驗壓力(MPa) | 0.66 | 1.1 | 1.76 | 2.75 | 2.2 |
低壓氣密封試驗壓力(MPa) | 0.6 | 0.6 | 0.6 | 0.6 | 0.6 |
設計制造 | JB/T 11489-2013 放料用截止閥 | ||||
法蘭標準 | JB/T 79、GB/T 9113、HG/T 20592、HG/T 20615、SH/T 3406、ASME B16.5等 | ||||
檢驗試驗 | JB/T 11489-2013 放料用截止閥 | ||||
工作溫度 | -60℃ ~ 232℃ | ||||
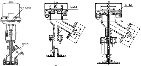
電動放料閥外型尺寸
公稱壓力 PN(MPa) | 公稱通徑 DN(mm) | 上展式尺寸(mm) | 下展式尺寸(mm) | ||||||||||
D1 | D2 | D3 | D4 | D5 | D6 | D1 | D2 | D3 | D4 | D5 | D6 | ||
1.6 | 25 | 115 | 85 | 115 | 85 | — | — | 115 | 85 | 135 | 100 | 70 | 40 |
32 | 135 | 100 | 135 | 100 | 70 | 40 | 135 | 100 | 145 | 110 | 75 | 55 | |
40 | 145 | 110 | 145 | 110 | 70 | 50 | 145 | 110 | 160 | 125 | 80 | 60 | |
50 | 165 | 125 | 160 | 125 | 80 | 60 | 160 | 125 | 180 | 145 | 100 | 80 | |
65 | 180 | 145 | 180 | 145 | 95 | 75 | 180 | 145 | 195 | 160 | 135 | 110 | |
80 | 195 | 160 | 195 | 160 | 110 | 90 | 195 | 160 | 225 | 190 | 160 | 135 | |
100 | 215 | 180 | 215 | 180 | 130 | 110 | 215 | 180 | 260 | 225 | 200 | 175 | |
125 | 245 | 210 | 245 | 210 | 160 | 130 | 245 | 210 | 280 | 245 | 200 | 175 | |
150 | 280 | 240 | 280 | 240 | 190 | 150 | 280 | 240 | 335 | 295 | 240 | 210 | |
200 | 335 | 295 | 335 | 295 | 240 | 200 | 335 | 295 | 405 | 355 | 285 | 240 | |
電動放料閥結構圖

本產品按結構型式的不同分為電動上展式放料閥、電動下展式放料閥和電動放料球閥等。如果你需訂購我廠放料閥,咨詢時煩請說明公稱通徑、公稱壓力、閥體和內件材質、使用介質及溫度、連接形式及電動執行器類型等。
網站首頁