電動切斷球閥產品概述
電動切斷球閥由對焊、承插焊、螺紋或法蘭連接球閥和電動執行器組成,其電裝輸入電壓為單相220V或三相380V、頻率50Hz/60Hz的電源即可對球閥的開啟和關閉進行控制,并通過閥門的全開或全關,實現對管路內介質的接通或切斷。該閥可以遠距離集中控制,操作人員只需坐在控制室就能控制生產過程而不需要親臨現場去人工手動操作球閥的開關,現場只需鋪設一些管線連接控制室和驅動裝置,電源通過電線直接帶動電動執行機構工作,從而在閥桿上端施加一定的轉矩并傳遞給球體,使它旋轉90度,達到啟閉通道的目的。本產品主要用于管路中介質的遠程開、關(流通、截斷介質)控制,特適合用在冶金、環保、制藥、造紙、石油、石化、化工、天然氣及相關工業自動化控制系統中。
電動切斷球閥部件材料
| 序號 | 部件名稱 | 材料名稱 | ||||
| 1 | 閥 體 | A216 WCB | A351 CF8 | A351 CF3 | A351 CF8M | A351 CF3M |
| 2 | 連 接 體 | A216 WCB | A351 CF8 | A351 CF3 | A351 CF8M | A351 CF3M |
| 3 | 球 體 | A105+ENP | A182 F304 | A182 F304L | A182 F316 | A182 F316L |
| 4 | 閥 座 | R-PTFE、PTFE、TEFLON、NYLON、PPL、PEEK、DEVLON、SS+HF | ||||
| 5 | 閥 桿 | A182 F6a | A182 F304 | A182 F304L | A182 F316 | A182 F316L |
| 6 | 固 定 軸 | A182 F6a | A182 F304 | A182 F304L | A182 F316 | A182 F316L |
| 7 | 填 料 | GRAPHITE、R-PTFE、PTFE、TEFLON、PCTFE | ||||
| 8 | 填料壓蓋 | A216 WCB | A351 CF8 | A351 CF3 | A351 CF8M | A351 CF3M |
| 9 | 螺 柱 | A193 B7 | A193 B8 | A193 B8 | A193 B8M | A193 B8M |
| 10 | 螺 母 | A194 2H | A194 8 | A194 8 | A194 8M | A194 8M |
電動切斷球閥技術規范
| 公稱壓力Class | 150 | 300 | 600 | 900 | 1500 |
| 殼體試驗壓力(MPa) | 3.0 | 7.5 | 16.5 | 22.5 | 39.0 |
| 高壓液體密封試驗壓力(MPa) | 2.2 | 5.5 | 12.1 | 16.5 | 28.6 |
| 低壓氣體密封試驗壓力(MPa) | 0.4~0.7 | 0.4~0.7 | 0.4~0.7 | 0.4~0.7 | 0.4~0.7 |
| 設計制造 | GB/T 12237、GB/T 21385、API 6D、API 608、ASME B16.34 | ||||
| 結構長度 | GB/T 12221、API 6D、ASME B16.10 | ||||
| 法蘭尺寸 | JB/T 79、GB/T 9113、HG/T 20592、HG/T 20615、SH/T 3406、ASME B16.5等 | ||||
| 檢驗試驗 | GB/T 26480、JB/T 9092、API 6D、API 598 | ||||
| 控制方式 | 開關到位燈(開關兩位控制)、無源觸點信號 | ||||
| 電源電壓 | 單相220 VAC、三相380 VAC、遠程24 VDC (50Hz) | ||||
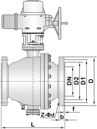
電動切斷球閥主要尺寸
| 公稱壓力 Class | 公稱尺寸 NPS | 外形及連接尺寸/mm | |||||
| L | D | D1 | D2 | b-f | Z-?d | ||
| 150 | ? | 108 | 90 | 60.3 | 34.9 | 9.6-1.6 | 4-16 |
| ? | 117 | 100 | 69.9 | 42.9 | 11.2-1.6 | 4-16 | |
| 1 | 127 | 110 | 79.4 | 50.8 | 12.7-1.6 | 4-16 | |
| 1 ? | 140 | 115 | 88.9 | 63.5 | 14.3-1.6 | 4-16 | |
| 1 ? | 165 | 125 | 98.4 | 73.0 | 15.9-1.6 | 4-16 | |
| 2 | 178 | 150 | 120.7 | 92.1 | 17.5-1.6 | 4-19 | |
| 2 ? | 190 | 180 | 139.7 | 104.8 | 20.7-1.6 | 4-19 | |
| 3 | 203 | 190 | 152.4 | 127.0 | 22.3-1.6 | 4-19 | |
| 4 | 229 | 230 | 190.5 | 157.2 | 22.3-1.6 | 8-19 | |
| 5 | 356 | 255 | 215.9 | 185.7 | 22.3-1.6 | 8-22.5 | |
| 6 | 394 | 280 | 241.3 | 215.9 | 23.9-1.6 | 8-22.5 | |
| 8 | 457 | 345 | 298.5 | 269.9 | 27.0-1.6 | 8-22.5 | |
| 10 | 533 | 405 | 362.0 | 323.8 | 28.6-1.6 | 12-25.5 | |
| 12 | 610 | 485 | 431.8 | 381.0 | 30.2-1.6 | 12-25.5 | |
| 14 | 686 | 535 | 476.3 | 412.8 | 33.4-1.6 | 12-28.5 | |
| 16 | 762 | 595 | 539.8 | 469.9 | 35.0-1.6 | 16-28.5 | |
| 18 | 864 | 635 | 577.9 | 533.4 | 38.1-1.6 | 16-32 | |
| 20 | 914 | 700 | 635.0 | 584.2 | 41.3-1.6 | 20-32 | |
| 22 | 1016 | 750 | 692.2 | 641.4 | 44.5-1.6 | 20-35 | |
| 24 | 1067 | 815 | 749.3 | 692.2 | 46.1-1.6 | 20-35 | |
| 表中為ASME B16.5標準Class150法蘭連接固定球球閥尺寸,如需其他規格參數,請來電咨詢! | |||||||
電動切斷球閥結構圖

如果你需訂購我廠電動球閥產品,咨詢價格時煩請注明規格型號,如無法提供,請告知公稱通徑、公稱壓力、閥體和內件材料、使用介質、工作溫度,電動執行器類型(有普通開關型和整體型等),本產品有軟密封和金屬硬密封兩種,如有其他技術要求,請說明。
網站首頁