TD42熱動力型圓盤式蒸汽疏水閥產品概述
TD42熱動力型圓盤式蒸汽疏水閥是依靠蒸汽和凝結水的流速差工作,當凝結水通過閥座時流速較小,閥片打開排除凝結水,當蒸汽進入閥座因流速較大而關閉閥片,從而達到阻汽排水的效果。其起動時,冷態的凝結水及空氣流入閥內將閥片頂起,并從凝結水出口迅速排放出去,然后蒸汽進入閥內,高速流動的熱蒸汽在閥片下形成低壓,將閥片拉動向下,同時,在閥片上的變壓室內蒸汽壓力迫使閥片向下動作,閥片將閥門關閉,關閥后,進入變壓室的蒸汽向接觸閥蓋外側的空氣散熱,變壓室內的蒸汽漸漸凝結成水,壓力也因此逐漸降低,閥片將再次被入口凝結水頂起,循環開始。該閥為間歇排水,正常出廠過冷度20℃~50℃,如有過冷度要求訂貨時注明。本產品可選擇法蘭、螺紋、承插焊等連接方式,具有體積小、排量大、節能性、使用時間長、耐低溫等特點,廣泛應用于低、中、高壓蒸汽輸送管、工藝伴熱、小排量的設備。
TD42熱動力型圓盤式蒸汽疏水閥部件材料
序號 | 部件名稱 | 材料名稱 | ||||
1 | 閥 蓋 | A105 | A182 F11 CL.2 | A182 304 | A182 316 | A182 316L |
2 | 閥 體 | A105 | A182 F11 CL.2 | A182 304 | A182 316 | A182 316L |
3 | 閥 座 | A276 420 | A276 420 | A276 304 | A276 316 | A276 316L |
4 | 閥 片 | A276 420 | A276 420 | A276 304 | A276 316 | A276 316L |
5 | 過 濾 網 | A240 304 | A240 304 | A240 304 | A240 316 | A240 316L |
6 | 墊 片 | A240 304 | A240 304 | A240 304 | A240 316 | A240 316L |
7 | 螺 蓋 | A105 | A182 F11 CL.2 | A182 304 | A182 316 | A182 316L |
TD42熱動力型圓盤式蒸汽疏水閥性能規范
公稱壓力PN(MPa) | 1.6 | 2.5 | 4.0 | 2.0 | 5.0 |
殼體試驗壓力(MPa) | 2.4 | 3.75 | 6.0 | 3.0 | 7.5 |
設計制造 | GB/T 22654-2008 蒸汽疏水閥 技術條件 | ||||
結構長度 | GB/T 12250-2005 蒸汽疏水閥 術語、標志、結構長度 | ||||
連接法蘭 | JB/T 79、JB/T 82、GB/T 9113、GB/T 9115、HG/T 20592、HG/T 20615、ASME B16.5等 | ||||
螺紋標準 | GB/T 7306.1、GB/T 7306.2、GB/T 7307、GB/T 12716、ASME B1.20.1等 | ||||
焊接端部 | 承插焊按JB/T 7746或ASME B16.11,對焊按GB/T 12224或ASME B16.25等 | ||||
檢驗試驗 | GB/T 12251-2005 蒸汽疏水閥 試驗方法 | ||||
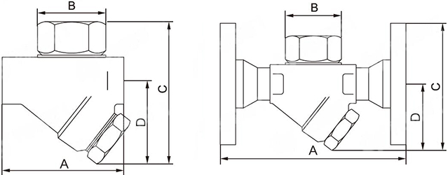
TD42熱動力型圓盤式蒸汽疏水閥外型尺寸
公稱通徑 PN | 公稱通徑 DN | 法蘭連接結構尺寸(mm) | 螺紋和承插焊連接結構尺寸(mm) | ||||||
A | B | C | D | A | B | C | D | ||
63 (Class300)50 | 15 | 150 | 55 | 126 | 68 | 90 | 55 | 126 | 68 |
20 | 150 | 55 | 126 | 68 | 90 | 55 | 126 | 68 | |
25 | 150 | 55 | 126 | 68 | 90 | 55 | 126 | 68 | |
TD42熱動力型圓盤式蒸汽疏水閥排水量表
公稱通徑 DN | 工作壓差(△P).kg/cm2 | ||||||||||||
0.5 | 1 | 3 | 6 | 9 | 12 | 15 | 18 | 21 | 24 | 30 | 35 | 40 | |
15 | 140 | 170 | 250 | 330 | 400 | 490 | 500 | 580 | 600 | 690 | 720 | 800 | 820 |
20 | 140 | 170 | 250 | 330 | 400 | 490 | 500 | 580 | 600 | 690 | 720 | 800 | 820 |
25 | 190 | 225 | 345 | 480 | 590 | 700 | 750 | 810 | 900 | 990 | 1100 | 1300 | 1390 |
32 | 290 | 350 | 500 | 700 | 830 | 995 | 1200 | 1290 | 1310 | 1520 | 1750 | 1800 | 1995 |
40 | 290 | 350 | 500 | 700 | 830 | 995 | 1200 | 1290 | 1310 | 1520 | 1750 | 1800 | 1995 |
50 | 290 | 350 | 500 | 700 | 830 | 995 | 1200 | 1290 | 1310 | 1520 | 1750 | 1800 | 1995 |
注:1、壓差是指疏水閥入口端與出口端的壓力差;2、排量是指蒸汽凝結水在單位小時內連續排放的量。
TD42熱動力型圓盤式蒸汽疏水閥結構圖

本蒸汽疏水閥在開關時發出“喀嚓”聲,可幫助判斷閥是否正常工作,其暴露在低溫環境中,會造成閥開關頻繁,降低使用時間,必須加隔熱罩。
網站首頁